Dream Houses
Creekside
This beautiful home is located on a 5 acre rural sight adjacent to a beautiful tree-lined creek. The owners love the aesthetics of the Adirondack and Craftsman styles, and this contemporary update utilizes the natural materials of those styles to wonderful effect.Click here to see more images of this home.
Lakeside
This wonderful Shingle Style home is the dream of the owner, who resided on the family's historic 38 acre estate on a beautiful lake. The owner drew a simple sketch of connected rectangles, showing the sequence of rooms to face the lake. From that simple idea magic was created.Click here to see more images of this home.
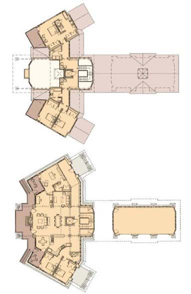
Riverside
This Shingle Style home sits at a shift in a broad river, with a view to rising dunes on the opposite bank. The home is designed with wrap-around verandas to take advantage of the river views, and a domed corner tower to mark the shift in the river.Click here to see more images of this home.
Winnetka
This suburban home in an established neighborhood replaces a smaller home on a large lot. The new home is designed to act as a good neighbor. The visual scale of the new house is broken down into various smaller components so that it does not overwhelm the surrounding houses.Click here to see more images of this home.
Projects Shown This Page and in Slide Shows:
Creekside Home, Lakeside Home, Riverside Home, and Winnetka Residence were designed by Hollis Home Design founder Cayl Hollis while working as Senior Designer and Project Architect for the firm of Tilton + Lewis, now known as Tilton, Kelly + Bell. All images of these homes are shown by permission of Tilton, Kelly + Bell.
Lakeside Home photographs are copyright of and shown by permission of Craig Klomparens.
Creekside Home photographs are by Cayl Hollis.
All drawings for these projects were created by, or created under the supervision of, Cayl Hollis.
Lakeside Home photographs are copyright of and shown by permission of Craig Klomparens.
Creekside Home photographs are by Cayl Hollis.
All drawings for these projects were created by, or created under the supervision of, Cayl Hollis.
Custom Home Design
Unique Ideas For Your Dream Home
Hollis Home Design creates dynamic design ideas that will make your dream home unique. We start with the aspirations of the client; we then create designs of wonder and joy. We love to explore ideas, and love working with clients who are willing to journey beyond standard solutions.
Click on the images on this page to take a slide-show tour of these unique homes. See the inspiring possibilities Hollis Home Design can bring to your dream home.